| 概
述
液固喷射器(SLY型水喷射式装卸车),主要由漏斗和喷射器两部分构成,用来装填和补充颗粒材料。如活性碳、离子交换器用的树脂和其它固体材料。
液固喷射器(SLY型水喷射式装卸车),它借助高压水传送可流动颗粒材料,使其通过一个漏斗进入喷射器。
水以很高的速度从动力喷嘴中喷出,进入喷射器的混合区,这时喷射的水带动传送物,通过一个管道或软管导入使用现场。

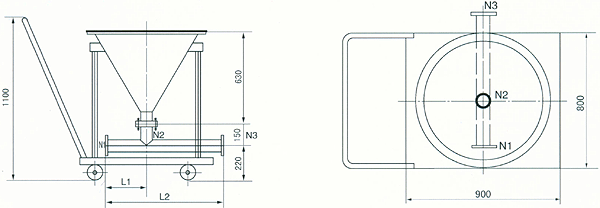
技术参数
型 号 |
Y-I |
Y-II |
传送量 m3/h |
0.2-1.5 |
1-3 |
水消耗量m3/h |
4-6 |
8-12 |
N1 |
65 |
80 |
N2 |
80 |
100 |
N3 |
65 |
80 |
L1 |
280 |
300 |
L2 |
755 |
820 |
|
 |
注:1、水压力为≤0.3Mpa;
2、漏斗容量:100L
3、接口法兰标准:HG20593-97 RF PNl.0

|